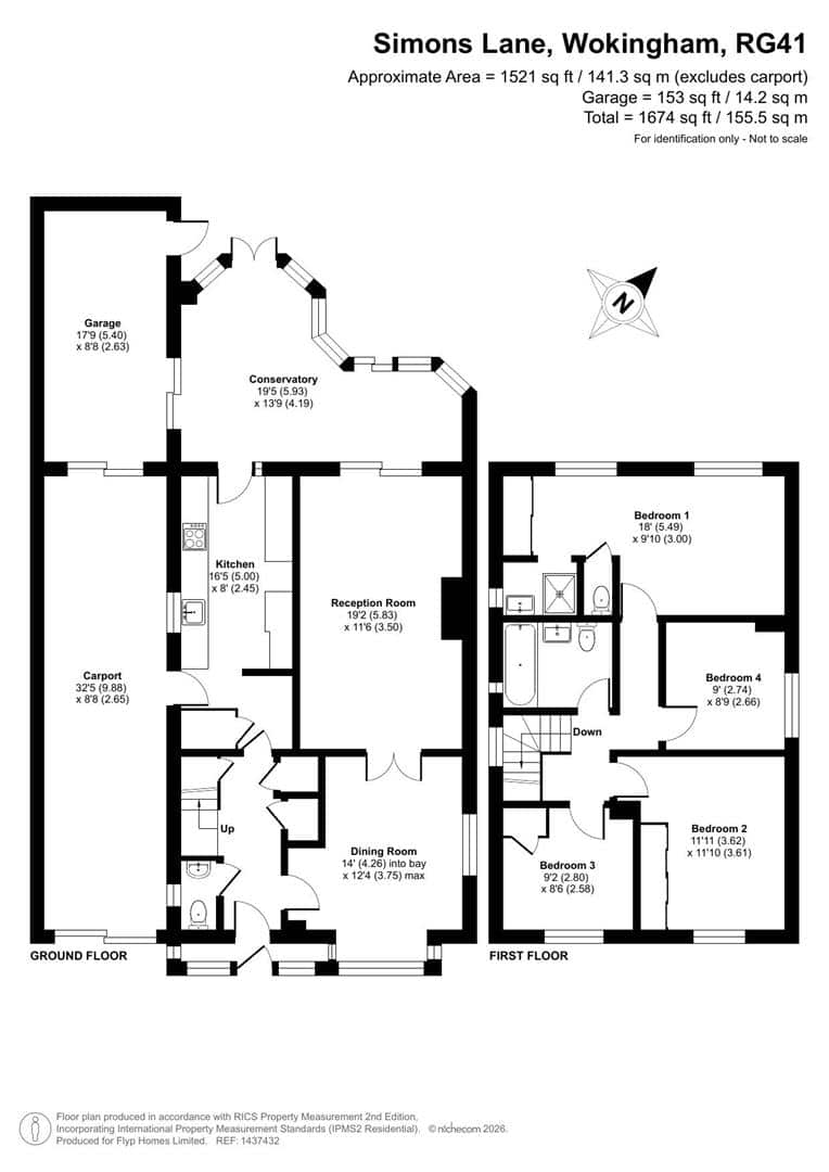
Simons Lane Wokingham, Berkshire RG41 3HG
Price £700,000
Features
- Four bedroom detached family home
- Spacious reception room and separate dining room
- Large conservatory overlooking the garden
- Garage and carport
- Off street parking
- Convenient Wokingham location
